2 Bedroom Finca – Cortijo in Cártama

Cártama, Málaga, Spain
For Sale Print Property PDF
2 Bedroom Finca – Cortijo in Cártama
Cártama, Málaga, Spain

Overview

  • R5081374
  • Property ID
  • Finca
  • Property Type
  • 2
  • Bedrooms
  • 1
  • Bathroom
  • 156
  • 1928
  • Lot ㎡

Description

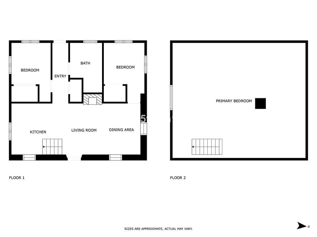
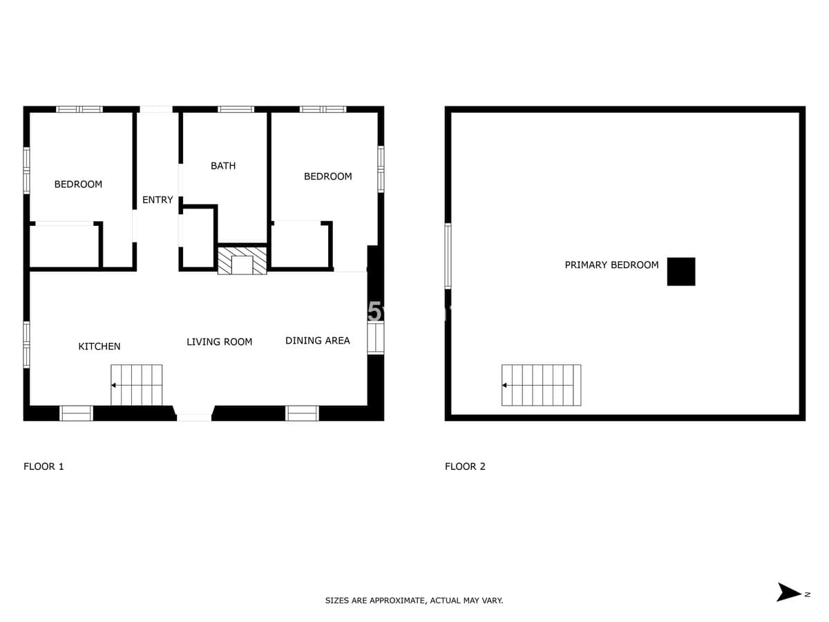
Fantastic investment opportunity: Beautiful and cozy renovated country house nestled on a rustic, fenced 1,927 m2 plot in the Rio Grande area of ​​Cártama. The house has a surface area of ​​156 m2 spread over two floors, with two spacious bedrooms, a full conventional bathroom with a shower, and an outdoor toilet. The second floor is open-plan with a loft and solid Finnish red pine floor and ceiling. It has a laundry/storage room, a living room with a highly efficient cassette fireplace with a sash and swing door. The spacious kitchen features tilt-and-turn PVC windows, double-glazed windows, thick walls for excellent thermal insulation, and a meticulous rustic Andalusian style that provides a touch of warmth and freshness to each room. It has a high-powered three-phase electrical supply suitable for fast charging of electric vehicles. Located in an idyllic natural setting, it offers tranquility and wonderful unobstructed views of the Guadalhorce Valley, just 5 minutes from the Málaga-Pizarra highway and 15 minutes from the regional hospital. The property is easily accessible from Málaga, Pizarra, Coín, Villafranco, Cerralba, and Cártama Pueblo. If you're looking to live or invest in a unique setting of peace and tranquility, yet still have easy access to the city, don't hesitate to visit this property.

 

Details

  • Property ID: R5081374
  • Property Size: 156 ㎡
  • Land Area: 1928 ㎡
  • Bedrooms: 2
  • Bathroom: 1
  • Property Type: Finca
  • Property Status: For Sale
  • City Cártama
  • State/county Málaga
  • Country Spain

Compare listings

Compare
Blue Gecko Estates
  • Blue Gecko Estates