Residential Plot in Mijas Costa

Mijas Costa, Málaga, Spain
For Sale Print Property PDF
Residential Plot in Mijas Costa
Mijas Costa, Málaga, Spain

Overview

  • R4867801
  • Property ID
  • Plot
  • Property Type
  • 0
  • Bedroom
  • 0
  • Bathroom
  • 559
  • Lot ㎡

Description

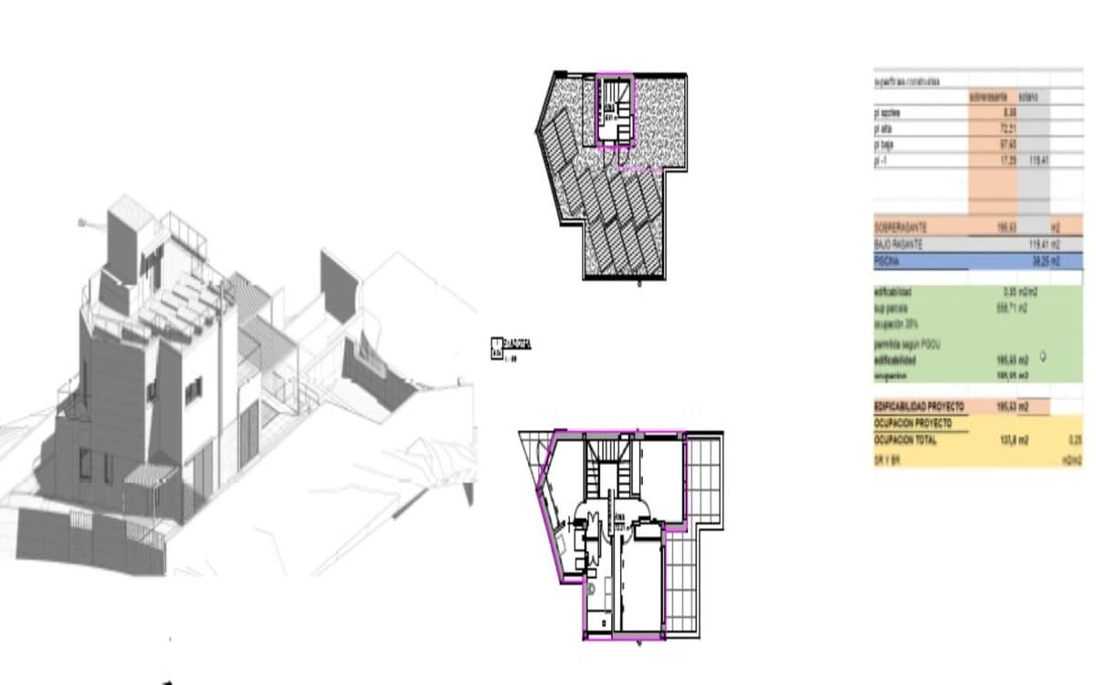
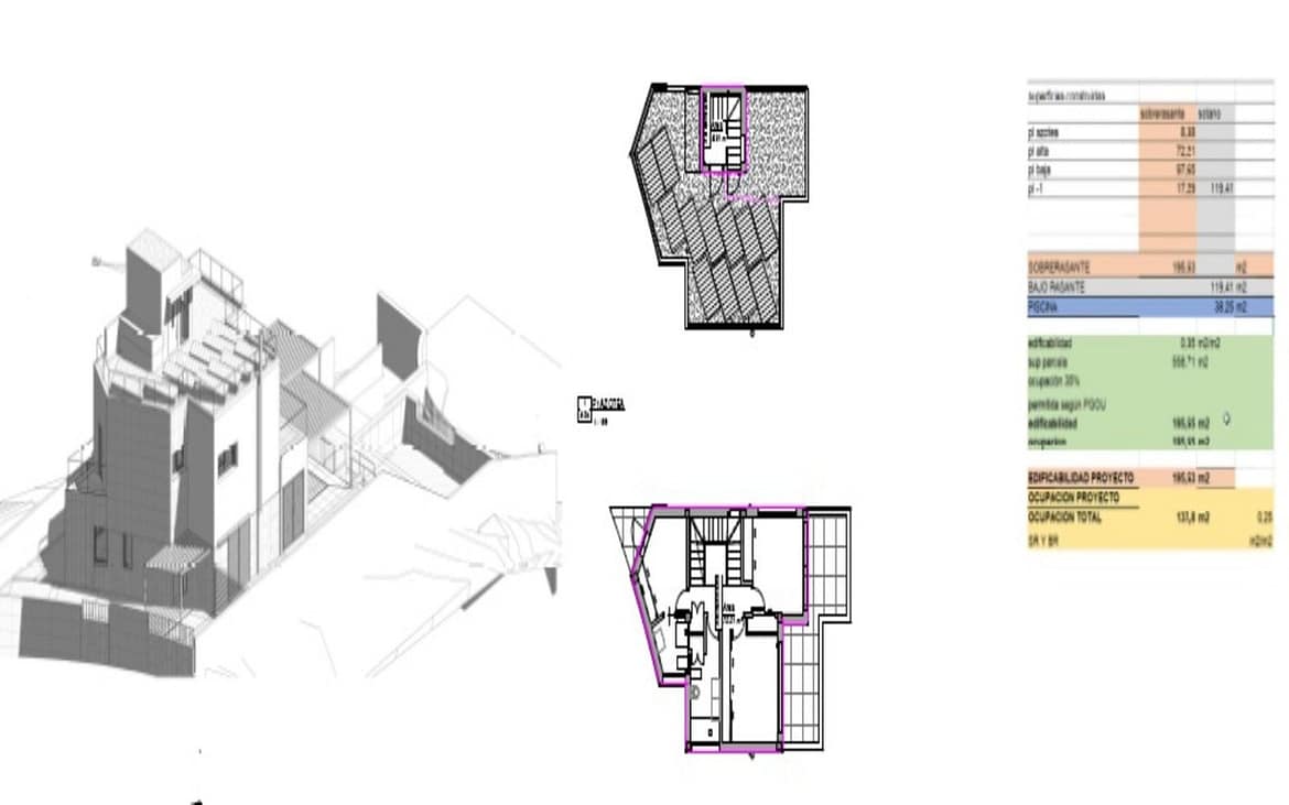
For sale: Plot with approved project and license in the prestigious urbanization of Lagarejo, a privileged enclave known for its tranquility and natural beauty.

Located just three kilometers from the beach and in the vicinity of Fuengirola, this plot offers easy access to the stunning beaches and all the services the city has to offer.

The project involves the construction of a charming 195m2 villa, boasting impressive sea views and a private pool for enjoying unforgettable moments.

Don't hesitate to request more information! The sale price of the plot is subject to VAT.

 

Details

  • Property ID: R4867801
  • Land Area: 559 ㎡
  • Bedroom: 0
  • Bathroom: 0
  • Property Type: Plot
  • Property Status: For Sale
  • City Mijas Costa
  • State/county Málaga
  • Country Spain

Compare listings

Compare
Blue Gecko Estates
  • Blue Gecko Estates