Residential Plot in El Rosario

  • €1,300,000
El Rosario, Málaga, Spain
For Sale Print Property PDF
Residential Plot in El Rosario
El Rosario, Málaga, Spain
  • €1,300,000

Overview

  • R3501808
  • Property ID
  • Plot
  • Property Type
  • 0
  • Bedroom
  • 0
  • Bathroom
  • 2400
  • Lot ㎡

Description

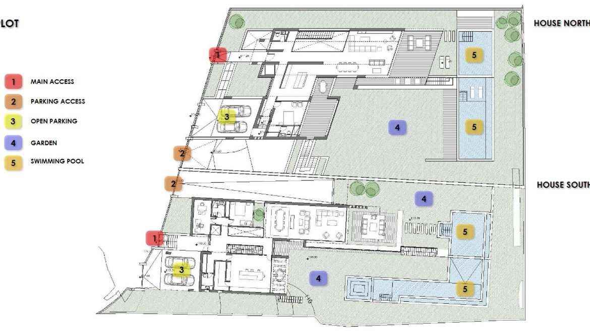
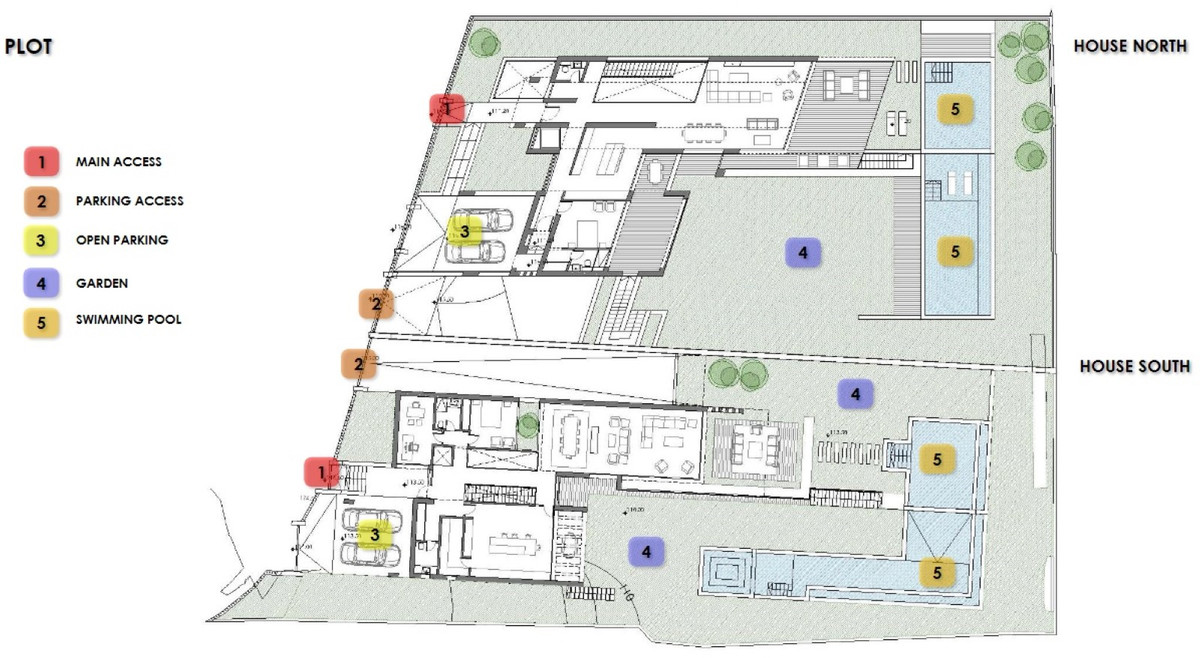
SEA VIEW DEVELOPMENT OPPORTUNITY! Two adjoining development plots of 1200m2 each with panoramic sea views. Full project included with architects plans and planning permission approved to build two contemporary sea view villas (estimated resale value of €2.9M each based upon high spec finish). A prime site for development of 2 new sea view villas in El Rosario.

 

Details

  • Property ID: R3501808
  • Price: €1,300,000
  • Land Area: 2400 ㎡
  • Bedroom: 0
  • Bathroom: 0
  • Property Type: Plot
  • Property Status: For Sale
  • City El Rosario
  • State/county Málaga
  • Country Spain

Compare listings

Compare
Blue Gecko Estates
  • Blue Gecko Estates