Residential Plot in Benalmadena Pueblo

Benalmadena Pueblo, Málaga, Spain
For Sale Print Property PDF
Residential Plot in Benalmadena Pueblo
Benalmadena Pueblo, Málaga, Spain

Overview

  • R4927423
  • Property ID
  • Plot
  • Property Type
  • 0
  • Bedroom
  • 0
  • Bathroom
  • 290
  • Lot ㎡

Description

Building plot with project in Rancho Domingo, Benalmádena Pueblo. Very attractive location on a corner plot at the end of a dead end street close to the village with all kinds of amenities.

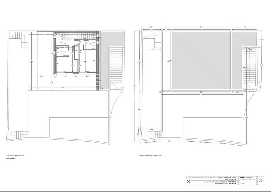
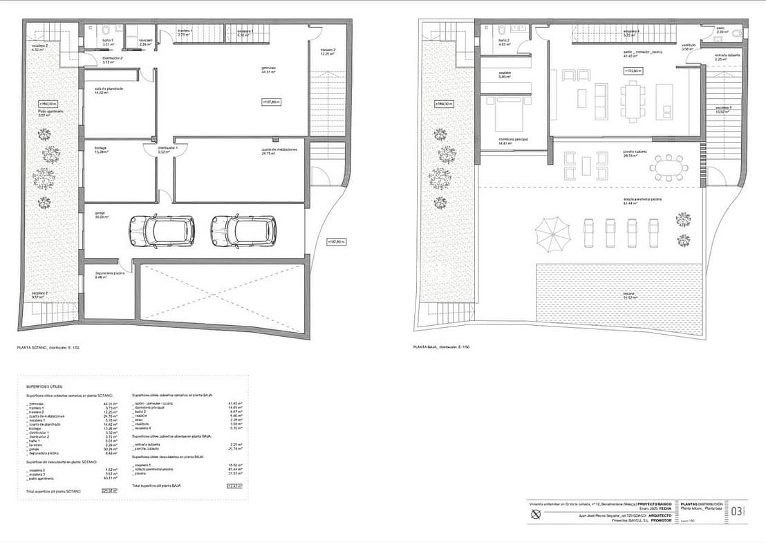
The project which is ready for the building license consists of a detached villa with private swimming pool and garage. It is developed to have basement, ground floor and first floor, with a garage for two vehicles and a swimming pool. It has been oriented so that the main views are directed to the points where there are no buildings, thus increasing the feeling of privacy.

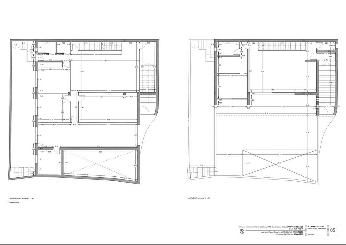
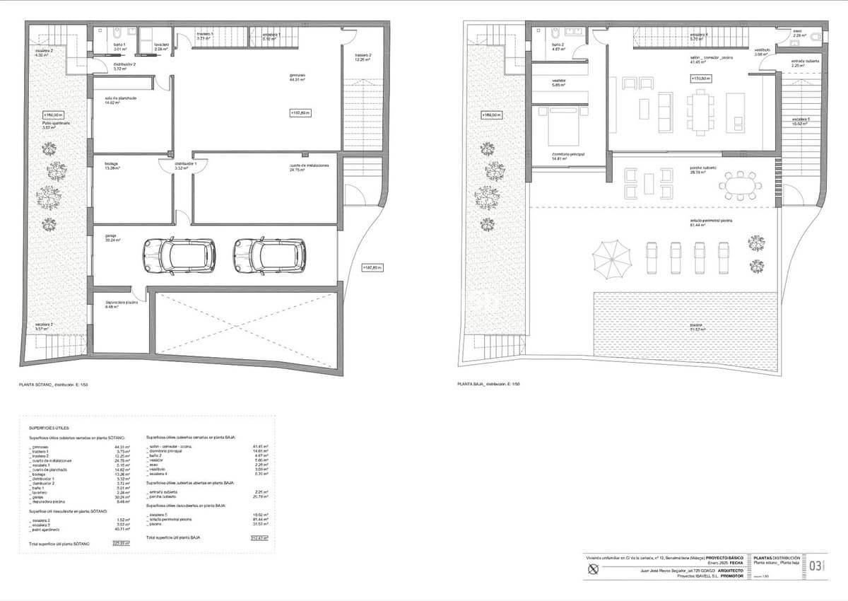
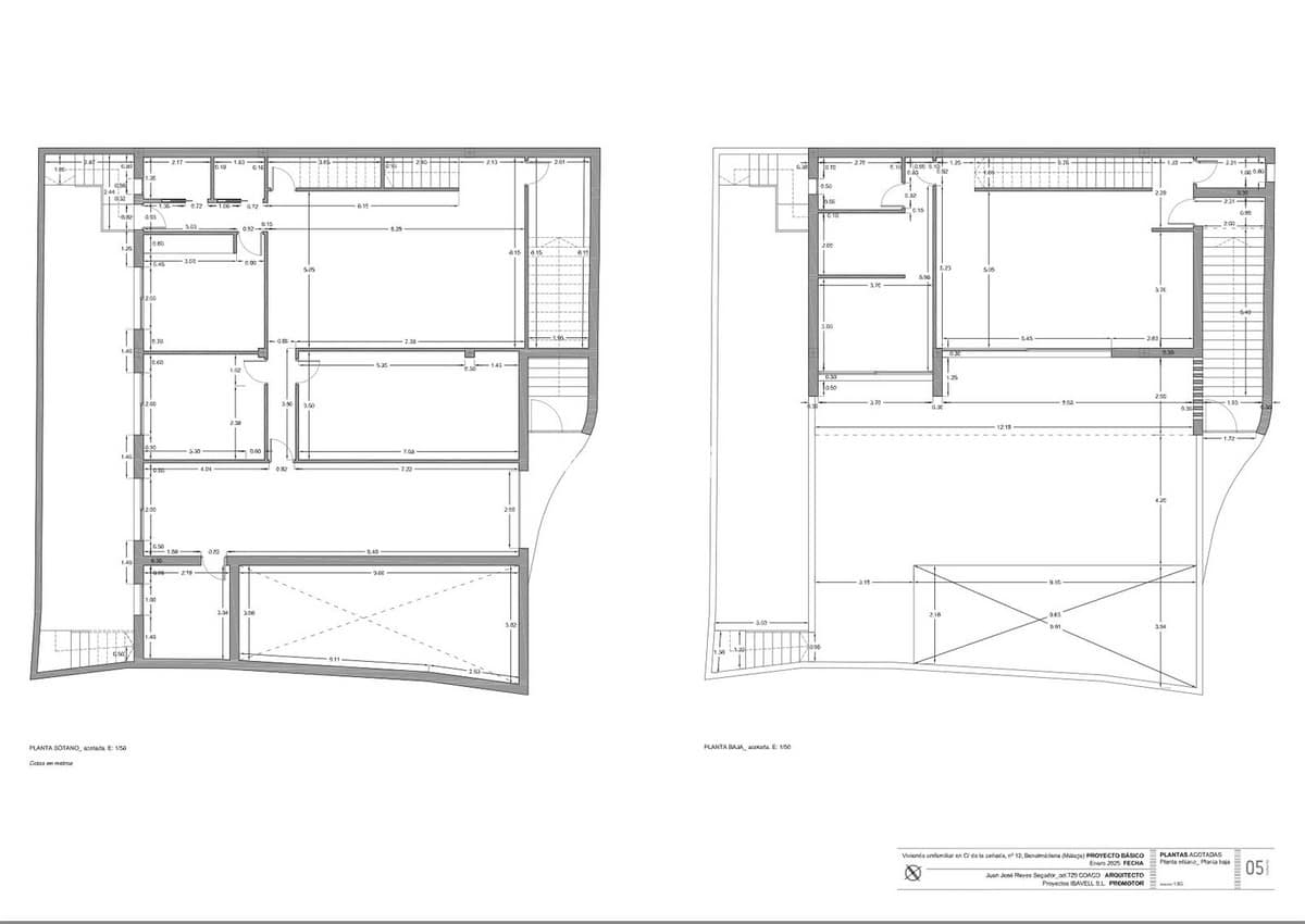
Basement level with gym, storage rooms, installation room, ironing room, wine cellar, bathroom 1, laundry room, garage and patio. Total usable area of basement 223.97 m2.
Ground floor level with living room, dining room, kitchen, master bedroom, bathroom 2, dressing room, toilet, hallway, covered entrance, covered porch and swimming pool. Total usable area ground floor 212.43 m2. Closed constructed area on ground floor 89.60 m2.
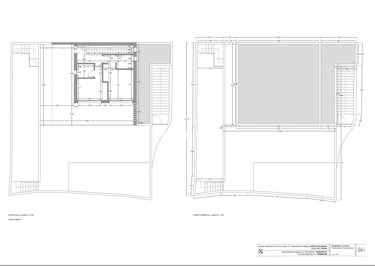
First floor with bedroom 1, bedroom 2, hall, bathroom 3, bathroom 4, covered terrace and open terrace. Total usable area first floor 83.10 m2. Closed constructed area on the first floor 46.91 m2
Total projected usable area 519.50 m2. Total built area computable at urban planning level 136.51 m2.

The planned building is located in a consolidated urban environment of the development. The plots in the area are either built or in the process of being built.

 

Details

  • Property ID: R4927423
  • Land Area: 290 ㎡
  • Bedroom: 0
  • Bathroom: 0
  • Property Type: Plot
  • Property Status: For Sale
  • City Benalmadena Pueblo
  • State/county Málaga
  • Country Spain

Compare listings

Compare
Blue Gecko Estates
  • Blue Gecko Estates