5 Bedroom Detached Villa in Sotogrande

Sotogrande, Cádiz, Spain
For Sale Print Property PDF
5 Bedroom Detached Villa in Sotogrande
Sotogrande, Cádiz, Spain

Overview

  • R5008060
  • Property ID
  • Villa
  • Property Type
  • 5
  • Bedrooms
  • 4
  • Bathrooms
  • 511
  • 1233
  • Lot ㎡

Description

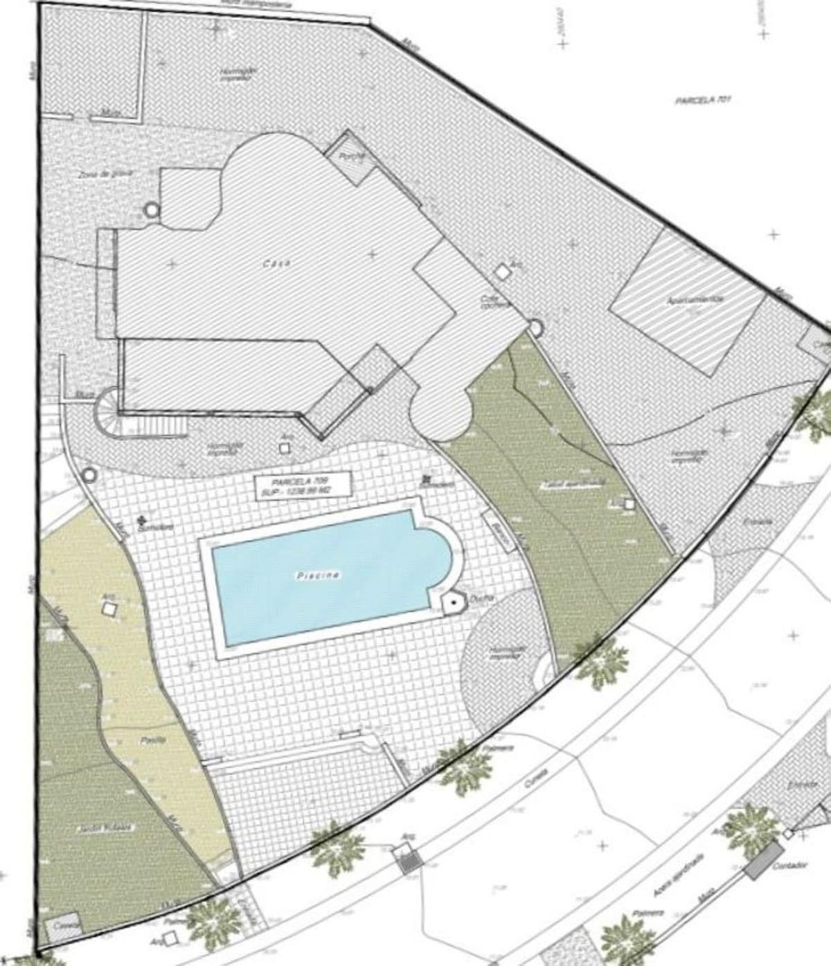
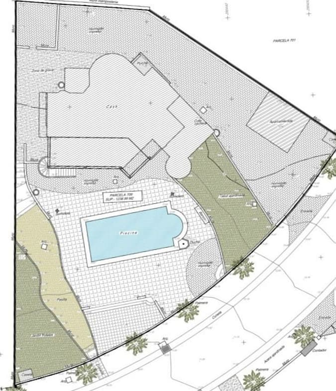
We present a large south facing plot in the exclusive and privileged area of Sotogrande Alto. This villa is much more than a property, it is a blank canvas waiting for you to give it the personal touch you have always dreamed of. With an unrivalled setting, it is the perfect place that invites you to give it your personal touch and turn it into a luxury property to suit you, either to enjoy it as a family residence or as an investment for the future.

As soon as you enter, you will be greeted by an elegant hall with stained glass windows that leads to a bright living room, full of possibilities. From here, you will be able to access a large terrace that connects directly to a beautiful and spacious garden, with landscaped areas that invite you to relax and a barbecue area perfect for outdoor leisure time. Its private swimming pool becomes the centre of summer activities, offering you the possibility to relax in an exclusive atmosphere. Imagine relaxing in this space while enjoying the tranquillity and natural beauty that surrounds you.
The main floor includes a kitchen with pantry, perfect for adapting to your needs, a guest toilet, a private office ideal for working at home, and direct access to the garage, guaranteeing you comfort and functionality in your day-to-day life.

As you make your way upstairs, you will discover a bright master bedroom that will become your personal retreat. With a large dressing room and en-suite bathroom, this space is ideal for relaxing after a long day. The spacious terrace off the master bedroom offers spectacular views of Sotogrande, a privileged corner where you can enjoy moments of peace and beauty. On this floor, you will also find another terrace, two additional bedrooms and a complete bathroom, designed to offer maximum comfort.

On the ground floor, the villa offers an independent guest house with its own kitchen, bathroom, two bedrooms and ample storage space. This area, full of natural light, connects directly with the garden and the swimming pool, guaranteeing privacy and comfort for your guests or family members. In addition, the villa has a carport at the entrance and a large private garage, offering you the comfort and security you deserve.

If you are looking for a property with great potential to reform and adapt it to your needs, this villa is the perfect choice. With an unbeatable location, ample space and a design that invites you to create, this villa in Sotogrande Alto represents a unique and valuable investment. Don't miss the opportunity to turn this wonderful place into the home you've always wanted, we look forward to showing you your future home!

Offer subject to errors, price changes or any other modifications without prior notice. Price does not include taxes and conveyancing fees. Including agency fees.

 

Details

  • Property ID: R5008060
  • Property Size: 511 ㎡
  • Land Area: 1233 ㎡
  • Bedrooms: 5
  • Bathrooms: 4
  • Property Type: Villa
  • Property Status: For Sale
  • City Sotogrande
  • State/county Cádiz
  • Country Spain

Compare listings

Compare
Blue Gecko Estates
  • Blue Gecko Estates